A-Frame 700 sq.ft.

It all begins with an idea. Maybe you want to launch a business. Maybe you want to turn a hobby into something more. Or maybe you have a creative project to share with the world. Whatever it is, the way you tell your story online can make all the difference.

700 sq.ft. A Frame

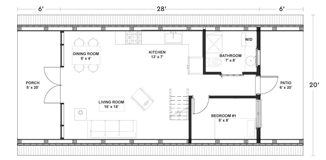
Ground Floor Plans -560 sq.ft.

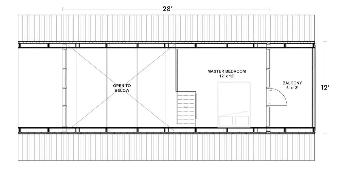
Upper Floor Plans 130sq.ft.

“It all begins with an idea.” - Source

“It all begins with an idea.” - Source