Path to Ownership

We’re here to give you tiny home living options that allow you to embrace a simplified and sophisticated lifestyle. When you own a Designer Cottage, you have the luxury of enjoying an energy efficient, refined tiny home for the rest of your life. Joining the microliving movement and beginning a fuller life in an exceptional tiny home is as easy as 1, 2, 3. *Designer Cottages are available only at development partner locations.

3 Easy Steps

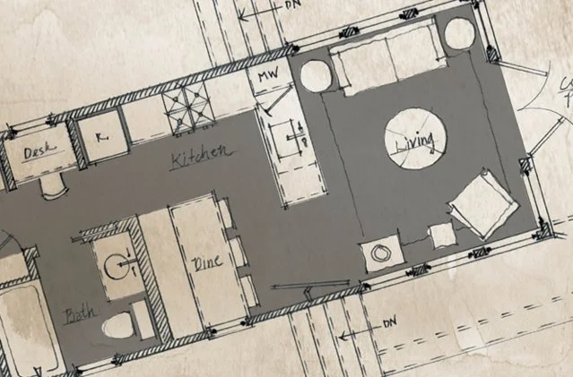
Floor Plan

Select one of our Tower home floor plans.


Location

Contact one of our development partner locations.  

Financing

Talk to your lender about your financing options.

The Ideal Vacation Rental Option

Select your favorite Designer Tower floor plan.

The Designer Towers offers 3 luxurious floor plan options so you can select the floor plan that best fits your personal style and needs. Enjoy a virtual tour of The Lookout or Full Tower to help you select your perfect, new Tower home.

Contact a Builder Partner.

The Designer Tower Homes are only sold and installed through our licensed and experienced Building partners. Contact a Builder here. If you’re interested in becoming a Tower Builder, learn more.

Acquire the proper financing.

Designer Tower homes are Timberframe Strucures that meet all the qualifications for traditional home financing. If you decide to finance your Tower purchase and your lender requests information about the home’s building specifications, you can complete the form below to receive a builder package to show your lender or local planning and codes department.

  • WE ALSO OFFER IN HOUSE FINANCING OF UP TO 75%

SIGNATURE MOUNTAIN CAPITAL

Our Preferred Lender who specializes in rural Financing and off the grid construction.

Learn more